Oloa
Suau'u Fa'atofu Electromagnetic Voltage Transformer
  • Suau'u Fa'atofu Electromagnetic Voltage TransformerSuau'u Fa'atofu Electromagnetic Voltage Transformer
  • Suau'u Fa'atofu Electromagnetic Voltage TransformerSuau'u Fa'atofu Electromagnetic Voltage Transformer

Suau'u Fa'atofu Electromagnetic Voltage Transformer

Model:JDX-110、220
O le Anqiang Power o se kamupani Saina o lo'o tu'uina atu suau'u fa'atofu electromagnetic voltage transformers. O lenei voltage transformer o se fafo, tasi-vaega, tasi-laasaga ituaiga, talafeagai mo faiga eletise ma le fua faatatau masani o le 50Hz po o le 60Hz ma le fua faatatau voltage o le 66KV-220KV, mo le faaaogaina i le voluma ma le fuaina o le malosi ma relay puipuiga.

Anqiang's tutoatasi atiina ae Suauu immersed Electromagnetic Voltage Transformer, faataitaiga JDX faasologa, e talafeagai mo tulaga voltage o 66KV, 110KV, ma 220KV.  O le transformer o loʻo faʻaalia ai le tolu faʻamalo lona lua i le pito i luga, faʻatasi ai ma fua eseese ma puipuiga.  O lo'o fa'apipi'iina i se tane fa'alautele u'amea u'amea i le pito i luga, lea e aofia ai se tioata e va'aia ai le suau'u mo le mata'ituina lelei o suiga o le suau'u. O le pito i lalo ole Suau'u Immersed Electromagnetic Voltage Transformer o loʻo faʻapipiʻiina i se alavai alavai suauʻu tele-galuega, faʻafaigofie le suauʻu suauʻu, faʻafefe, ma toe faʻatumu. O le fa'avae ma isi vaega u'amea fa'aalia o le oloa e fa'aogaina uma ai le pa'u pa'u ma le vevela-dip galvanizing anti-corrosion faiga, fa'amautinoa uma le matagofie ma le lelei tele o le fa'afefe. O lenei voltage transformer o loʻo faʻaalia ai se fausaga faʻapipiʻi e tasi, ma o taʻitaʻi e aofia ai le tele o mata capacitive e faʻamautinoa ai se eletise eletise tutusa.

Ata o oloa moni

Oil Immersed Electromagnetic Voltage Transformer

Vaega Fa'atekinisi

Fuafuaina le malosi muamua (kV)

66/69

110/115

132/138

150

220/230

Maualuluga o meafaigaluega (kV)

72.5

123/126

145

325

460

Fua fa'atatau (Hz)

50/60

Fa'atatau ole malosi ole taimi ole malosi ole malosi (kV)

140/160

230

275

750

1050

Fa'atatau ole uila e fa'asaga i le voltage (kV)

325/350

550

650

1500

2100

Va'a emo afu

780

1050

1300

 

 

uta fa'ainisinia (N)

1250

1250

1250

1250

1250

Faailoga pito lua

1a-1n

2a-2n

tama-dn

Tulaga sa'o

0.2

0.5

3P

Fua fa'atatau (VA)

100

250

300

150

150

300

150

300

Fa'atapula'a fa'avevela (VA)

2000

Fa'ailoga eletise fa'atatau

1.2/Fa'aauau;1.9/8h(66KV)
1.2/Fa'aauau;1.5/30s(110-230KV)

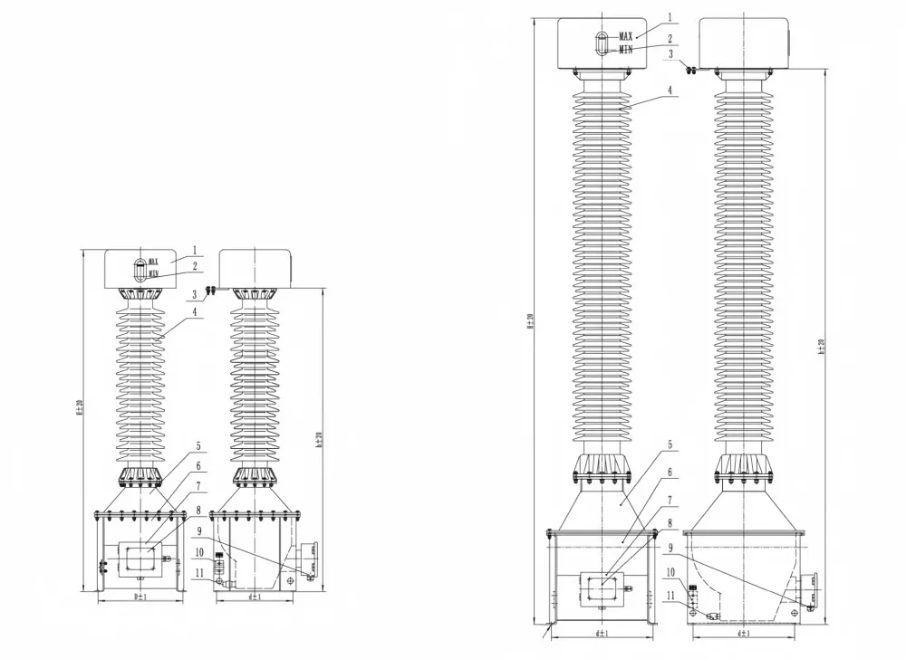
Ata fa'aalia o oloa

Oil Immersed Electromagnetic Voltage Transformer

Numera

Igoa

1

Fa'alautele

2

Fa'amalama su'esu'ega tulaga suau'u

3

Ta'iala ta'itasi

4

lima poselela

5

Si'i nofoa

6

Tane

7

Pusa so'oga lona lua

8

Faailoga igoa

9

Pu lua fafo

10

Papa fa'avae

11

Valau fa'afefe suau'u

Fa'ailoga vevela: Suau'u Fa'atofu Voltage Voltage Transformer, Suau'u Fa'atofu Voltage Transformer, Electromagnetic Voltage Transformer
Auina atu Su'esu'ega
Fa'amatalaga Fa'afeso'ota'i
  • tuatusi

    Jinlu Industrial Zone, Beibaixiang Town, Yueqing City, Wenzhou City, Zhejiang Province, Saina

  • Tel

Mo fa'amatalaga e uiga ile Circuit Breaker, Load Switch, Disconnect Switch po'o le lisi o tau, fa'amolemole tu'u mai lau imeli ia matou ma o le a matou feso'ota'i i totonu ole 24 itula.
X
Matou te fa'aogaina kuki e ofo atu ai ia te oe se su'esu'ega sili atu, au'ili'ili fefa'ataua'iga i luga ole laiga ma fa'avasega mea e aofia ai. I le fa'aogaina o lenei 'upega tafa'ilagi, e te ioe i le matou fa'aogaina o kuki. Faiga Fa'alilolilo
Teena Talia